Biệt thự mái bánh Ú là gì? Ngắm mẫu biệt thự mái bánh Ú phong cách hiện đại
Biệt thự mái bánh Ú là gì? Mái bánh Ú có gì đặc biệt và nổi bật? Nếu bạn đang phân vân với hai câu hỏi này thì bạn đã tìm đúng chỗ. Trong bài viết này, Gia Bảo Group sẽ giúp bạn tìm hiểu về biệt thự mái bánh Ú là gì? Đồng thời giới thiệu đến bạn một mẫu biệt thự đẹp 2 tầng độc đáo theo phong cách Nhật hiện đại.
Ngất ngây trước 101+ thiết kế biệt thự cao cấp, hiện đại, đa dạng phong cách.
Biệt thự mái bánh Ú là gì?
Biệt thự mái bánh Ú là gì? Bánh Ú là tên gọi một loại bánh của Việt Nam và cũng là tên gọi thân thương dành cho loại biệt thự có mái ngói dốc. Kiểu mái ngói có các góc nhọn, thoải rộng ra bên ngoài như che chở và bao bọc lấy căn nhà. Theo đó, mái được đổ bê tông, sau đó dán ngói lên để tạo vẻ thẩm mỹ và sự bền bỉ. Thiết kế mái ngói bánh Ú vừa bảo vệ cho công trình, giúp tránh mưa, tránh nắng tốt hơn, đồng thời mang nét đẹp của sự bề thế và vững chắc theo thời gian.

Gọi nôm na là mái bánh Ú để tạo sự gần gũi, giản dị và để chúng ta dễ nhớ. Tuy nhiên, vẻ đẹp và ý nghĩa mà mái bánh Ú mang lại cho căn nhà lại độc đáo hơn cái tên gọi rất nhiều. Theo đó, mái ngói bánh Ú là sự giao thoa, kết hợp giữa những ngôi nhà vườn mái ngói dốc chữ A với kiến trúc mái ngói Nhật Bản và một phần kiến trúc mái ngói phương Tây. Vì vậy, có thể nói mái ngói bánh Ú là loại hình tổng hòa của nhiều phong cách khác nhau, nhiều khu vực khác nhau.
Ở tại Việt Nam, mái bánh Ú được ứng dụng rộng rãi, trở thành lựa chọn phổ biến cho các chủ đầu tư cho các công trình nhà ở, công trình công cộng. Song để tôn lên vẻ đẹp của kiểu mái ngói này, đòi hỏi công trình phải có diện tích rộng lớn, kết hợp cảnh quan thiên nhiên sân vườn xanh mát. Giữa không gian thiên nhiên, biệt thự mái bánh Ú sẽ càng nổi bật và tạo nên giá trị riêng không gì thay thế được. Vì những lý do này, mái bánh Ú khiến cho rất nhiều KTS và chủ đầu tư không ngần ngại lựa chọn.
Phối cảnh 3D và mặt bằng cho biệt thự mái bánh Ú, phong cách hiện đại
Đến đây, chắc chắn bạn đã nắm rõ khái niệm: Biệt thự mái bánh Ú là gì? Bây giờ, hãy cùng các KTS của chúng tôi tham quan một mẫu biệt thự mái bánh Ú tiêu biểu, theo phong cách hiện đại.

Ngôi biệt thự 2 tầng này là của gia đình anh Long, tại Bình Dương. Sở hữu diện tích đất lên đến 15×40 m, các KTS của chúng tôi đã đưa phương án thiết kế về biệt thự mái bánh Ú, với sân vườn cho gia đình anh. Một không gian sống sang trọng, giao hòa cùng thiên nhiên, mang đến cảm giác thư giãn cho các thành viên trong gia đình. Ngay lập tức, anh Long đã hài lòng với phương án này và chúng tôi bắt tay vào lên bản vẽ 3D.
Phối cảnh 3D biệt thự 9×15
Từ ngoài vào trong, căn biệt thự có cách phối màu tinh tế, lấy màu sắc chính là trắng, ghi, nâu gỗ, xám. Cửa nhôm Xingfa và màu xám ngói làm cho ngôi nhà sang trọng và thời thượng hơn. Vào bên trong khu trệt hoặc tầng 1 là các thiết kế tối giản nhưng tinh tế và đầy tiện nghi, tạo ấn tượng mạnh mẽ với những vị khách lần đầu ghé thăm.

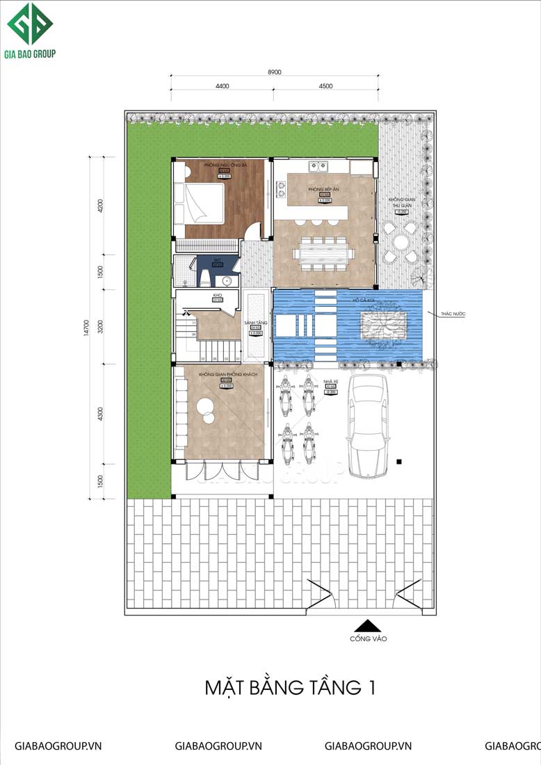
Với diện tích mặt bằng khá lớn nên các kiến trúc sư ưu tiên bố trí diện tích cho không gian cảnh quan bên ngoài. Gara để xe rộng rãi, có thể để được 2 chiếc xe hơi và nhiều xe máy. Kết nối giữa phòng khách và phòng bếp là hồ cá Koi và thác nước được bố trí vô cùng độc đáo tạo không gian thoáng mát yên bình.
Xem thêm:
- 20+ mẫu thiết kế biệt thự mini đẹp, giá tốt HCM.
- Chiêm ngưỡng mẫu biệt thự 3 gian hiện đại sang trọng
- 40+ Mẫu Biệt Thự 3 Tầng Sang Trọng Mới Nhất 2023
Mặt bằng của mẫu biệt thự mái bánh Ú có gì?
Gia đình anh Long là gia đình ba thế hệ nên cần không gian bếp và phòng khách lớn. Như vậy, cả gia đình mới có đủ không gian để sum vầy, ăn uống, giải trí trong những phút thảnh thơi.
Bố trí phòng hợp lý
Phòng ông bà được bố trí ngay dưới tầng trệt để tiện cho ông bà sinh hoạt, đi lại. Lầu 1 với công năng 3 phòng ngủ và 1 phòng sinh hoạt chung. Các KTS khéo léo bố trí phòng master với đầy đủ công năng tiêu chuẩn 5 sao: phòng thay đồ rộng tạo cảm giác thích thú, phòng tắm tiêu chuẩn 5 sao với nhiều tiện ích thoải mái và thú vị. Điều đặc biệt đáng nói ở đây là tất cả đều là không gian mở với hướng nhìn ra cảnh quan sân vườn thoáng đãng tạo cảm giác thoải mái đến tuyệt vời cho gia chủ.
Phòng sinh hoạt chung ấm cúng
KTS còn bố trí phòng sinh hoạt chung trong nhà. Đây là nơi chuyện trò tâm sự giữa ba mẹ và các con. Một không gian riêng tư, thoải mái và không làm ảnh hưởng đến sự yên tĩnh cần thiết của ông bà.

Xin chia sẻ thêm với bạn, khi có ý tưởng xây dựng tổ ấm của mình thì công năng ngôi nhà là vô cùng quan trọng và cần được ưu tiên. Những kiến trúc sư chưa có kinh nghiệm nhiều về điều phối mặt bằng, bố trí công năng không hợp lí thì khi xây dựng xong sẽ dẫn đến những trường hợp lãng phí diện tích hoặc sử dụng không phù hợp công năng. Do đó, bạn cần tìm hiểu thật kỹ lưỡng và tìm đến những kiến trúc sư có kinh nghiệm lâu năm để lên phương án mặt bằng cho gia đình mình nhé.
Tổng kết
Bạn vừa tìm hiểu bài viết về biệt thự mái bánh Ú là gì và tham khảo mẫu biệt thự 2 tầng từ Gia Bảo Group. Hy vọng với bài viết này, bạn sẽ có được những thông tin hữu ích về biệt thự. Hoặc nếu bạn muốn tư vấn kỹ hơn, vui lòng liên hệ với KTS của chúng tôi.


